ここが注目ポイント!
- 3沿線利用可能・大崎駅徒歩6分・2025年12月リノベ済み!
- バルコニーより目黒川の桜並木を望む眺望!
リフォ済 アパマン 駅近
首都圏不動産販売より
- ◇リノベーション内容◇
2025年12月完了
水回り設備交換:キッチン・浴室・トイレ
内装リフォーム:壁・床・全室
その他:照明器具設置他
Gallery
※クリックすると画像が別ウィンドウで最大表示します。
※図面と現況が相違する場合は現況を優先させて頂きます。
※当社の写真を無断で使用、アップロードすることはご遠慮ください。
※Unauthorized copying and replication of the contents of this site, text and images are strictly prohibited.
※当社の写真を無断で使用、アップロードすることはご遠慮ください。
※Unauthorized copying and replication of the contents of this site, text and images are strictly prohibited.
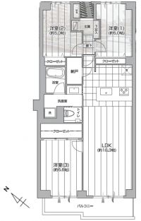
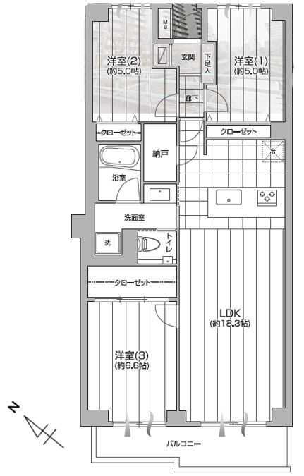
物件概要
| 物件No. | 200304 |
|---|---|
| 所在地 | 東京都品川区北品川5丁目 |
| 建物名 | 北品川ホームズ |
| 交通 | JR山手線「大崎」駅 徒歩6分 京急本線「新馬場」駅 徒歩15分 |
| 土地面積 | (公簿)m2 |
| 他に私道面積 | m2 |
| 建物構造 | 鉄骨鉄筋コンクリート造一部RC |
| 建物面積(延べ) | m2 |
| 建物規模 | 15階建 / 9階部分 |
| 専有面積 | 壁芯78.15m2 |
| バルコニー | 7.68m2 |
| 土地権利 | 所有権 |
| 地目 | |
| 都市計画 | 市街化区域 |
| 用途地域 | 準工業 |
| 建ぺい率 | % |
| 容積率 | % |
| 他の制限 | |
| 築年月 | 1981年 2月 |
| 総戸数 | 285戸 |
| 管理形態 | 全部委託 |
| 管理員 | 日勤管理 |
| 管理費 | 10,200円 |
| 修繕積立金 | 8,160円 |
| 現況 | 空家 |
| 引渡日 | 相談 |
| 駐車場 | あり空無し |
| 駐車賃料 | |
| 接道状況 | |
| 本体設備 | |
| 各戸設備 | |
| 備考 | |
| 取引態様 | 仲介 |
お電話される方は、「首都圏不動産販売のホームページを見て、物件No.200304」とお伝えいただくとスムーズにお応えできます。
ホームページ上にまだ掲載していない特選物件が多数あります。
お客様のご予算・ご要望に沿った物件を、担当者がお探しいたします。
MAP
【ご注意】現地の場所は必ずしも正確ではなく、”大体の場所”を示していることがありますので、一度お問い合わせください。
携帯でこの物件を確認したい方は、こちらのQRコードをご利用ください。
この物件の担当者
南谷
ひとこと
ある程度、合理的に考えますが、最後は運任せ的な部分もあります。子供が野球をやっているので、今はその手伝いをすることが楽しくなってきました。
この物件に関連するものをピックアップしてみました。
物件No.1694神奈川県足柄下郡湯河原町吉浜「キャッスル湯河原」 2LDK 480万円
〇吉浜ビーチまで徒歩約6分の2LDK+専用庭〇共用ロビーから相模湾を望める環境・セカンドハウス利用にもおすすめです。〇光回線も完備(個別の契約は必要です。)










