ここが注目ポイント!
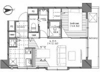
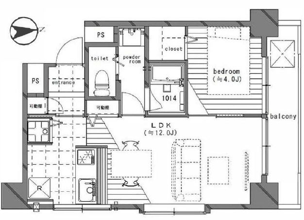
- オーナーチェンジ物件・角住戸・30㎡超え・1LDK
- 大井町駅より徒歩約10分と好立地
収益 アパマン
首都圏不動産販売より
- ◇リノベーション内容◇
2019年05月実施
・水回り:フルリノベーション
・内装:フルリノベーション
Gallery
※クリックすると画像が別ウィンドウで最大表示します。
※図面と現況が相違する場合は現況を優先させて頂きます。
※当社の写真を無断で使用、アップロードすることはご遠慮ください。
※Unauthorized copying and replication of the contents of this site, text and images are strictly prohibited.
※当社の写真を無断で使用、アップロードすることはご遠慮ください。
※Unauthorized copying and replication of the contents of this site, text and images are strictly prohibited.
物件概要
| 物件No. | 200274 |
|---|---|
| 所在地 | 東京都品川区大井4丁目 |
| 建物名 | モナーク大井 |
| 交通 | JR 京浜東北線「大井町」駅徒歩10 分 りんかい線・東急大井町線「大井町」駅徒歩11 分 JR横須賀線「西大井」駅徒歩14分 |
| 土地面積 | (公簿)m2 |
| 他に私道面積 | m2 |
| 建物構造 | 鉄骨鉄筋コンクリート造 |
| 建物面積(延べ) | m2 |
| 建物規模 | 8階建/ 3階部分 |
| 専有面積 | 壁芯35.64m2 |
| バルコニー | 5.40m2 |
| 土地権利 | 所有権 |
| 地目 | |
| 都市計画 | 市街化区域 |
| 用途地域 | 近隣商業 |
| 建ぺい率 | % |
| 容積率 | % |
| 他の制限 | |
| 築年月 | 1977年 12月 |
| 総戸数 | 37戸 |
| 管理形態 | 全部委託 |
| 管理員 | 日勤管理 |
| 管理費 | 12,310円/月 |
| 修繕積立金 | 10,776円/月 |
| 現況 | 賃貸中 |
| 引渡日 | 相談 |
| 駐車場 | なし |
| 駐車賃料 | |
| 接道状況 | |
| 本体設備 | システムキッチン コンロ二口 洗面所独立 ウォークインクローゼット エアコン |
| 各戸設備 | ゴミ出し24時間OK エレベーター |
| 備考 | ■利回り:5.43% ・年間想定収入:162万円 ・月額13.5万円で賃貸中(2023.12~) ■フラットファイル5適合証明書有り |
| 取引態様 | 仲介 |
お電話される方は、「首都圏不動産販売のホームページを見て、物件No.200274」とお伝えいただくとスムーズにお応えできます。
ホームページ上にまだ掲載していない特選物件が多数あります。
お客様のご予算・ご要望に沿った物件を、担当者がお探しいたします。
MAP
【ご注意】現地の場所は必ずしも正確ではなく、”大体の場所”を示していることがありますので、一度お問い合わせください。
携帯でこの物件を確認したい方は、こちらのQRコードをご利用ください。
この物件の担当者
南谷
ひとこと
ある程度、合理的に考えますが、最後は運任せ的な部分もあります。子供が野球をやっているので、今はその手伝いをすることが楽しくなってきました。
この物件に関連するものをピックアップしてみました。
物件No.1694神奈川県足柄下郡湯河原町吉浜「キャッスル湯河原」 2LDK 480万円
〇吉浜ビーチまで徒歩約6分の2LDK+専用庭〇共用ロビーから相模湾を望める環境・セカンドハウス利用にもおすすめです。〇光回線も完備(個別の契約は必要です。)


